This was a retail and brand project which was done in group along with 4 of my group mates.
Our project goal was to design a concept store for Safari that captures the brand's core essence. The objective was to move beyond a simple retail space and enhance product visibility and streamline the customer shopping experience in a way that feels premium and trustworthy.
My Contribution
Collaborating with the team was a rewarding experience, where diverse ideas came together to shape a unified concept. I contributed to model-making, bubble diagrams, and elevation design (materials and lighting), while actively collaborating and supporting across tasks to ensure a cohesive outcome.
Deliverables
Site visit, Brand Study, Mood boards, Bubble diagrams, Rough Sketches, Plan, Elevations, Rough 3D Model and final model
Tools
Procreate, All other things were done on sheets and cardboard, Sun board, Air dry clay
Safari Store Visit
Brand Study
We researched Safari as a brand and visited their store to understand its retail approach. The brand focuses on affordable, durable luggage for everyday travel, with a clear store layout, strong blue identity, and functional visual merchandising. Our key takeaway was that functionality, clarity, and visibility define the experience. This was followed by brainstorming on brand values, materials, sub-brands, and pop-up store strategies.
Brainstorming
Brand Moodboard
Bubble Diagram -
Sketches
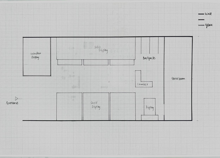
Zoning and Plan
Initial Rough Layout
The Zoning percentage were translated into an initial layout. This roughplan served as the first step towards detailed drawings.
Zoning with Percentage
We divided the space into zones and assigned functional percentages. This ensured the right balance between display, interaction, storage, and checkout.
Dimensions
A detailed store plan was created with accurate proportions and scale. This acted as the foundation for further elevations and sections.
Digitalization of Plan
The hand-drafted layout was digitized to bring precision and clarity. This step ensured accurate scaling and a cleaner base for further development.